validez Inmobiliaria presenta un espacio para soñar en esta extraordinaria Villa en Prado Tornero, uno de los enclaves más selectos y codiciados de El Escorial. Con una superficie construida de 300 m², este chalet independiente combina elegancia, amplitud y luminosidad en una ubicación privilegiada, ofreciendo un estilo de vida único en pleno centro de esta histórica y emblemática localidad.
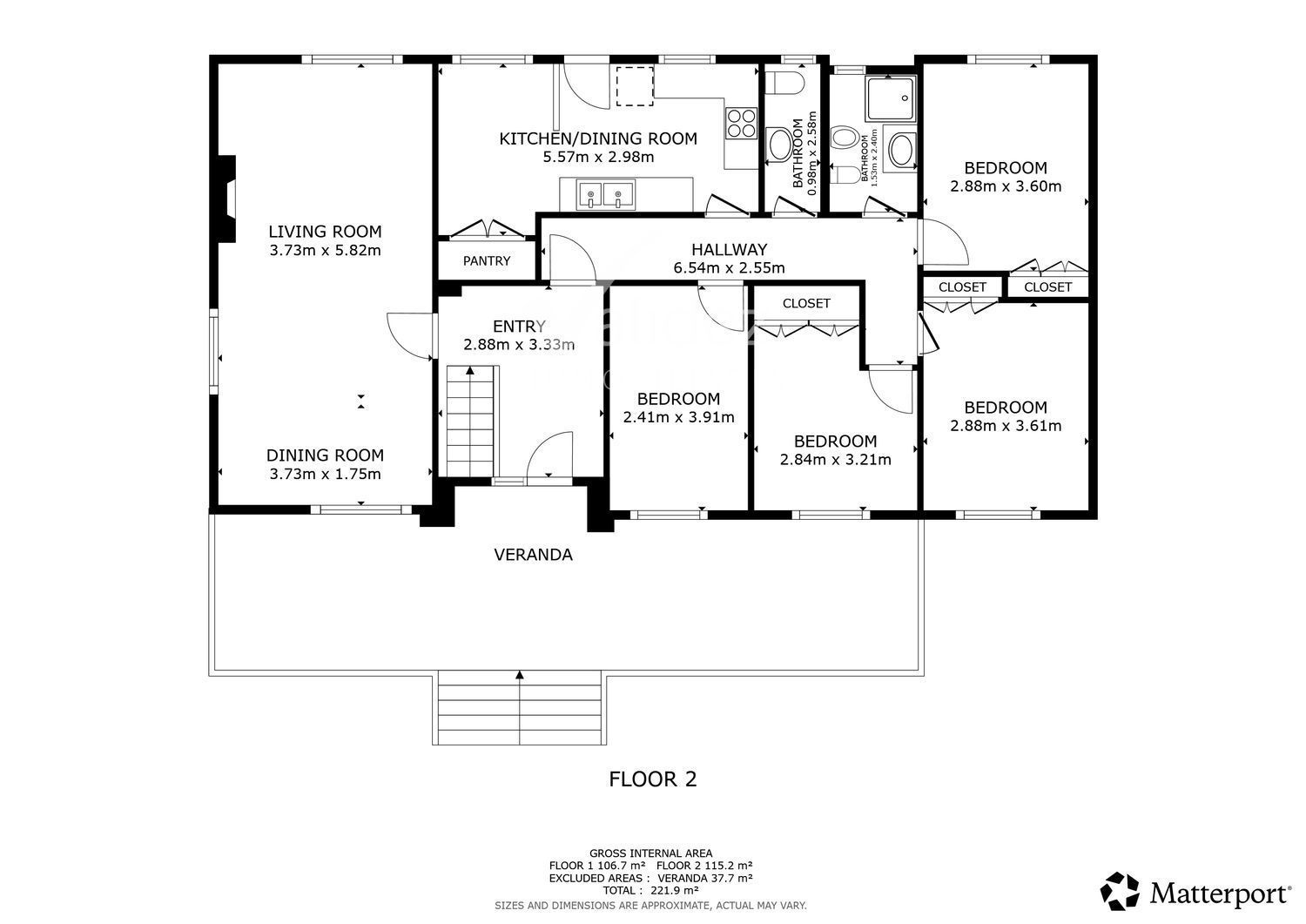
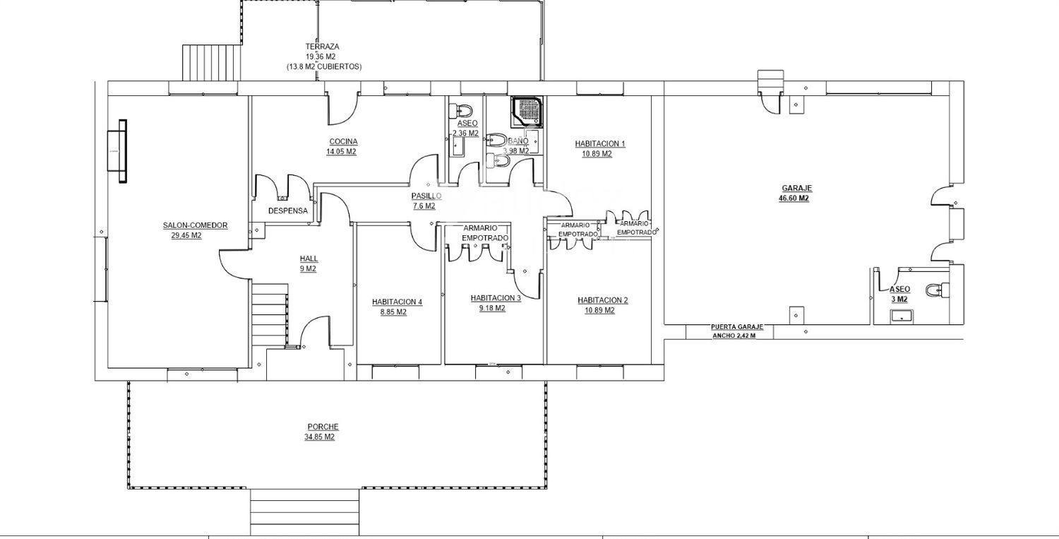
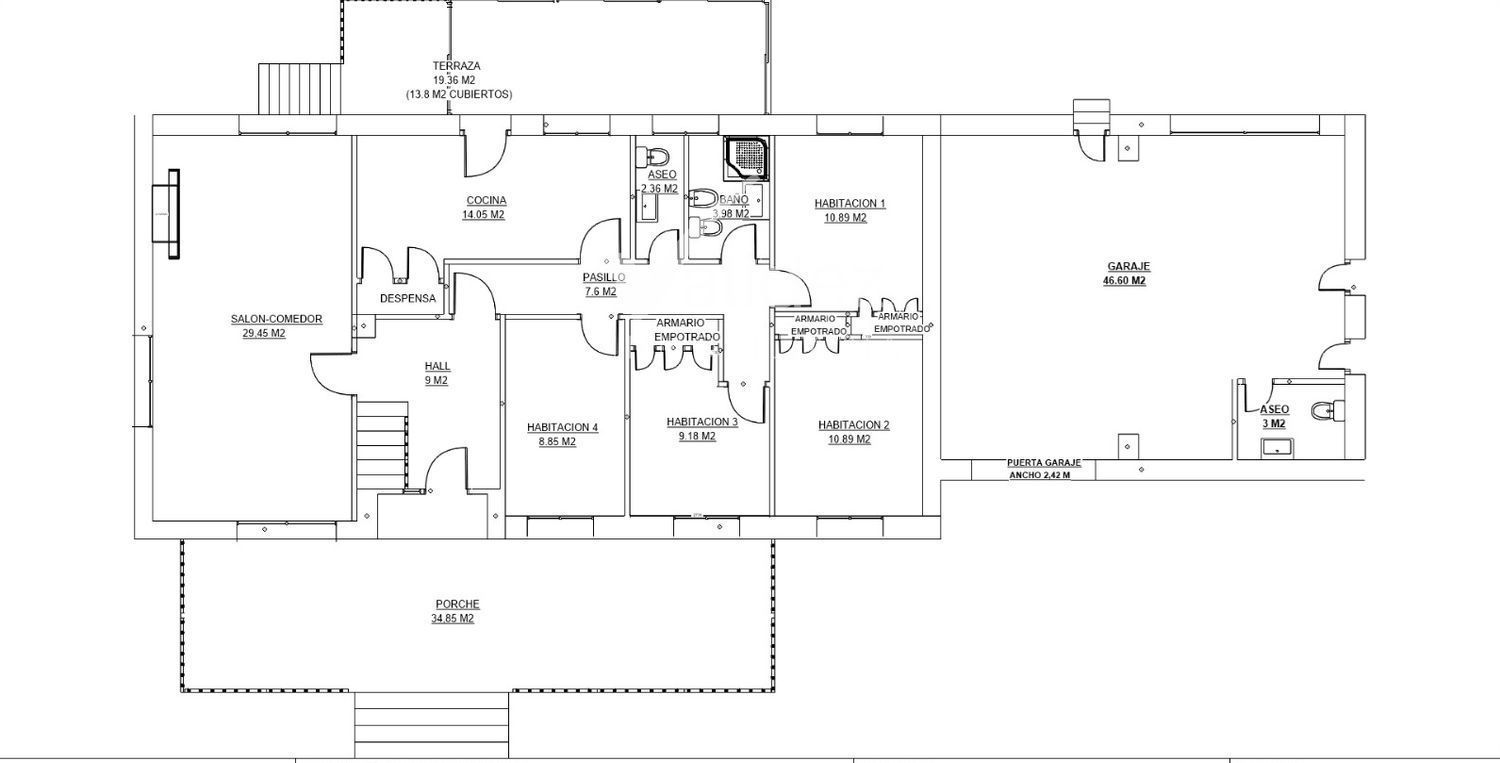
Destaca por su diseño atemporal y espacios cuidadosamente distribuidos. La vivienda esta distribuida todo en una sola planta, salón comedor con chimenea y grandes ventanales, cocina con zona de office y despensa y salida a un magnifica terraza totalmente acristalada para poder disfrutar de ella los 365 días del año, además en esta misma planta podemos disfrutar también de una segunda terraza de generosas dimensiones y con vistas a los espectaculares y consolidados jardines de la vivienda, sus cuatro habitaciones y dos baños proporcionan comodidad y versatilidad, ideales para familias numerosas o para quienes buscan un hogar sofisticado y funcional.
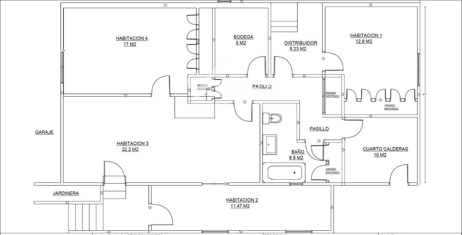
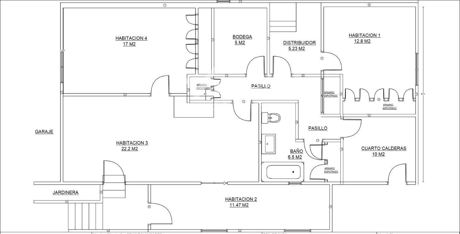
La vivienda cuenta con un amplio semisótano con entrada independiente, pudiendo acceder al
mismo cómodamente tanto desde dentro como desde fuera de la misma. Consta de dos salones, una bodega, un dormitorio y un cuarto de baño, todo con ventanas exteriores con especial luminosidad natural. Cuenta además con un cuarto de calderas y una lavandería. Desde el mismo accedemos cómodamente al jardín.
La magnífica parcela ajardinada de 1.251 m², es un auténtico oasis donde se unen naturaleza y tranquilidad. Su preciosa piscina invita a disfrutar de reuniones al aire libre, momentos de relajación o incluso a diseñar un espacio personalizado o zonas de ocio. En la parte superior y pegada a la piscina disfrutaremos del increíble solárium con vistas espectaculares al Monte Abantos. Cada rincón de esta propiedad ha sido elegido al detalle para aprovechar al máximo el confort y la tranquilidad que ofrece este entorno incomparable.
Su excepcional ubicación garantiza una excelente luminosidad natural durante todo el día, creando ambientes cálidos y acogedores. Prado Tornero no solo brinda privacidad y exclusividad, sino también un acceso cómodo a todos los servicios esenciales, como colegios, restaurantes, zonas comerciales y transporte público, todo ello sin renunciar a la serenidad de un entorno residencial y a cinco minutos andando al centro del pueblo.
Esta es una oportunidad única para quienes buscan un hogar de carácter exclusivo en una de las mejores ubicaciones de El Escorial. No pierda la ocasión de descubrir esta magnífica propiedad. Contáctenos para más información y para organizar una visita personalizada.